账号密码登录
手机动态码登录
用户名:
密 码:
验证码:
登录
注册账号
账号密码登录
手机动态码登录
手机号码:
手机验证码:
获得验证码
登录
注册账号
注册帐号
手机号码:
用户类型:
个人用户
经纪人用户
手机验证码:
获得验证码
密码必须大于8位字符必须包含数字大小写字母特殊字符
密码:
确认密码:
注册账号
登录
北京站
北京站
天津站
登录 / 注册
4006186022 - 1112
首页
写字楼出租
写字楼楼宇
共享办公
写字楼出售
推荐房源
写字楼新盘
行业资讯
房屋租赁
地图找房
企房房 >
大兴可以做生物实验室写字楼出租
>
大兴生物医疗基地片区写字楼出租
>
康华新特生物科技
> Z-32684
房源
楼盘
更新时间: 2026-04-29 05:09:32 发布时间: 1207天前
预计成交价:
2.3
元/㎡·天
839500 元/月
2.6
元/㎡·天 949000元/月
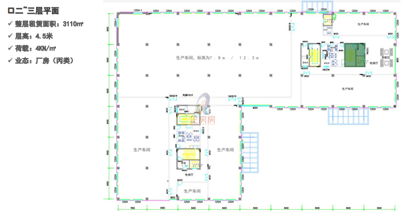
12000㎡
建筑面积
1000~2400人
工位
独栋
毛坯
大兴
-
大兴生物医疗基地
康华新特生物科技
张杰雄
咨询顾问
4006186022 - 1127
·拨打电话获取更多房源及租金信息,请告之在企房房看到
基本信息
可否注册
可注册
免租期
面议
最早起租
随时
最短租期
12个月
看房时间
随时
所在楼层
高层/共6层
价格情况
2.6
元/㎡·天 949000 元/月
房源朝向
独栋
预计成交价
2.3
元/㎡·天 839500元/月
装修情况
毛坯
面积情况
12000㎡、可容纳1000~2400工位
房源描述
实拍图片
张杰雄
咨询顾问
4006186022 - 1127
房屋面积:
12000㎡
价钱:
2.6 元/平米/天
预约看房
获得验证码
我要看房
康华新特生物科技
查看详情
挂牌房源
0套出售房源
0套出租房源
0套新房
周边配套
交通
餐饮
银行
酒店
周边楼盘
地铁站
公交站
描码进入公众号
描码进入百度小程序
描码进入微信小程序
010-53359906
地图找房