北京站
登录 / 注册
4006186022 - 1112
企房房 >  写字楼楼宇 >  广源大厦

广源大厦
广源大厦
广源大厦
广源大厦
广源大厦
广源大厦
广源大厦
广源大厦
更新时间: 2026-04-29 06:38:20 发布时间: 2304天前
出租:
5.34
元/㎡·天
出售:
不限 万元.㎡
18
在租房源
18 - 6000㎡
可租面积
租售电话 咨询顾问
010-56225887
·拨打电话获取更多房源及租金信息,请告之在企房房看到
房源信息
本楼盘在租面积
12301.3㎡
18㎡
最小面积
6000㎡
最大面积
本楼盘平均租金
5.29 元 ㎡·天
4 元 ㎡·天
最低租金
5.6元 ㎡·天
最高租金
出租房源
2300㎡
面积
5.2 元 平米·天
单价
精装修
装修
460㎡
面积
5.2 元 平米·天
单价
精装修
装修
240㎡
面积
5.2 元 平米·天
单价
精装修
装修
110㎡
面积
5.2 元 平米·天
单价
精装修
装修
75㎡
面积
5.2 元 平米·天
单价
精装修
装修
50㎡
面积
5.2 元 平米·天
单价
精装修
装修
25㎡
面积
5.2 元 平米·天
单价
精装修
装修
350㎡
面积
5.5 元 平米·天
单价
精装修
装修
查看所有出租房源 >>
小区基本信息
物业费
0.00元/月
物业电话
物业公司
暂无数据
所属片区
海淀 - 紫竹桥
所属园区
暂无数据
小区地址
海淀 - 紫竹桥]北京市海淀区广源闸路5号
楼栋总数
1栋
房屋总数
101户
容积率
70%
绿化率
暂无数据
建造年代
暂无数据
小区均价
5.34元
有无车位
有无电梯
供电类型
暂无数据
供水类型
暂无数据
供气方式
暂无数据
邮政编码
232000
占地面积
暂无数据
建筑面积
暂无数据
小区简介

广源大厦地址: 海淀区广源闸五号,西三环紫竹桥东北角。 (更多紫竹桥写字楼
交通: 公交路线:374路、944路、711路、728路、817路等  
环线: 西三环
装修情况: 精装
入住时间: 2008年4月26日  
开盘时间: 2000年  
销售许可证: 中国海洋物业管理有限公司
入住企业: 诺亚舟学习机;稻香村
开发商: 中经信投资有限公司
物业管理: 北京广源祥和物业管理有限责任公司
建筑数据建筑面积: 55000
占地面积: 1000
配套设施车位数: 地下固定车位

 

1-4:为教育综合体,

6-9层 以培训、办公为主

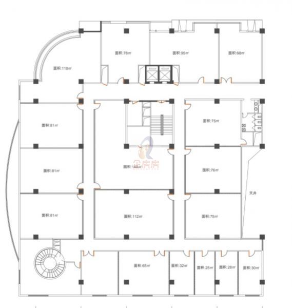
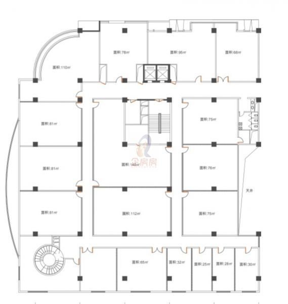
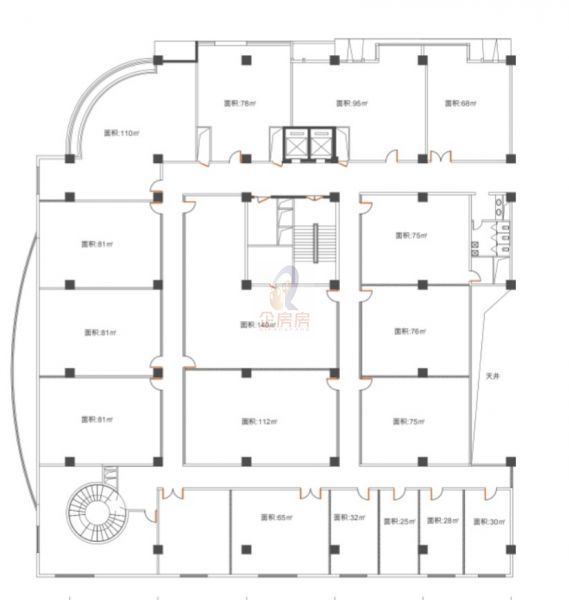
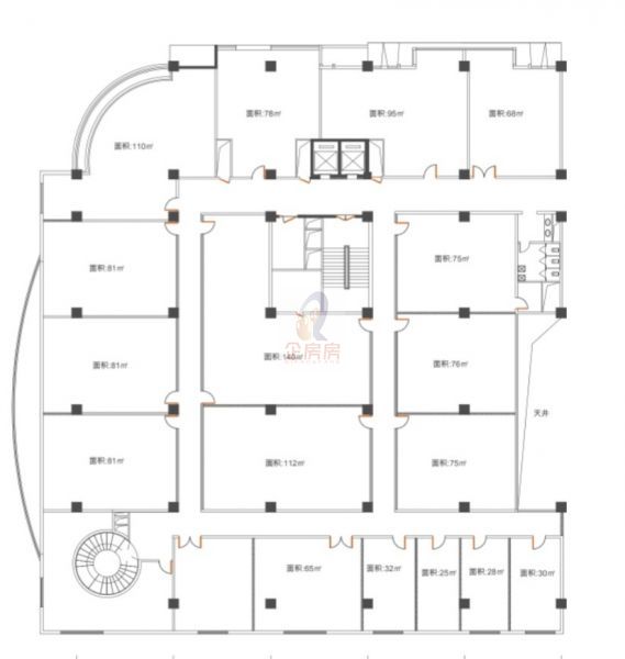
6层:6000平米出租布局                                                      招商业态:3000平办公      3000平商业(素质培训 医疗 医美  口腔  养老产业  社区服务  培训配套服务 展厅 体检中心 等等 电玩 电竞业态不限  )                                                  

 政策:国企房源,享受房租补贴 可提供注册、记账等服务,


消防设施: 有
供水方式: 市政
项目介绍
广源大厦是中经信投资有限公司投资兴建。大厦位于北京西三环中路东侧,紫竹院立交桥东北角,交通便利。广源大厦由著名设计师精心设计,地上九层、地下二层,总建筑面积近八万平方米,整体风格明亮高雅。地上一层设有工商银行及华夏银行营业厅:地下员工餐厅、超市、保龄球馆、夜总会等配套设施齐备;二层至九层为写字间及办公用房。大厦配有六部双电源进口垂直电梯、大型中央空调、中央式消防、安全监控系统、宽带及微波网络等。是集办公、商业、金融、餐饮、娱乐于一体的综合性商厦。
联系电话:68256570

该楼盘价格走势
楼盘问答
广源大厦总建筑面积是多少?
2020-10-29
广源大厦有地下的停车库吗?
2020-10-25
广源大厦使用面积多大?
2020-09-30
广源大厦包含地下楼层总共有多少层?
2020-08-16
广源大厦地上停车位多吗?
2020-05-15
广源大厦占地多少平米?
2020-05-13
广源大厦达到甲级写字楼的标准了吗?
2020-05-06
广源大厦停车3小时怎么收费的?
2020-05-01
广源大厦是什么类别的物业?
2020-04-28
广源大厦有没有在中心位置
2020-04-21
周边配套
服务顾问带看
徐保磊 服务顾问
5
成交31单,带看216次,维护着2486套房源
带看过该房源1次,2年前 带看过
李基尧 服务顾问
5
成交65单,带看525次,维护着2808套房源
带看过该房源2次,2年前 带看过
李巍 服务顾问
5
成交81单,带看621次,维护着3108套房源
带看过该房源1次,1年前 带看过
陈忠华 服务顾问
5
成交69单,带看755次,维护着2962套房源
带看过该房源1次,5年前 带看过
为你推荐
北京市东城区东四北大街168号详情
北京市东城区东四北大街168号
东城 - 东四
0.00元㎡
泰山别院(独栋商务会馆)详情
泰山别院(独栋商务会馆)
海淀 - 安宁庄
0.00元㎡
融创亿达创业园详情
融创亿达创业园
门头沟 - 门头沟
0元㎡
公司地址:
北京市北环中心607。河北分公司:河北省石家庄市裕华区槐安东路106号省石油公司宿舍门卫一楼106室,
关键词: 写字楼出租 写字楼出售 写字楼租赁 创意园出租 共享办公
4006186022 - 1112
服务时间: 工作日 早8:00-晚21:00
版权所有: 北京恒昌联行房地产咨询有限公司京ICP备14029178号-22京ICP备2022025968号-1